| 00-0000-0000@@@H“cŽs‘å’¬‚S|‚Q|‚Q‚R | |
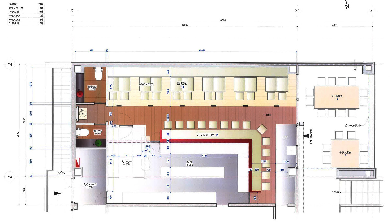
| yƒAƒLƒ^EƒK[ƒfƒ“Eƒeƒ‰ƒXz@‚QŠK@‚Q|‚Q†Žº @ˆùH“X•ÜÕ@@@@@@@@@“à‘•‚̓JƒEƒ“ƒ^[Žc’u‚ ‚è @씽’Ê‚è@‚Q‚V.2’Ø |
@@ Ú׃y[ƒW‚Ö |
ŠOŠÏ![]() |
ƒGƒ“ƒgƒ‰ƒ“ƒXƒXƒy[ƒX![]() |
||||||||
“X“à@ƒJƒEƒ“ƒ^[iŽc’uj![]() |
“X“à![]() |
||||||||
“X“à![]() |
~–[![]() |
||||||||
![]() |
ƒNƒŠƒbƒNI |
||||||||
| y•â‘«î•ñz |
|||||||||
| @ |
@ ƒGƒNƒZƒ‹ƒz[ƒ€Š”Ž®‰ïŽÐ @ 010-0914@H“cŽs•ی˖ìç‘ã“c’¬15-20޵•ó‘æ‚Pƒrƒ‹A†Žº @@tel‚O‚P‚W-‚W‚U‚R-‚P‚T‚O‚O@@fax‚O‚P‚W-‚W‚U‚S-‚P‚T‚P‚T @@@@@‘î’nŒš•¨Žæˆø‹ÆFH“cŒ§’mŽ–m‚Rn‘æ‚Q‚P‚U‚O† |
||||