| 00-0000-0000 秋田市高陽青柳町 | |
| 【飲食店舗】 マンション ユニオンスクエア1階 山王繁華街 路面店 10坪 |
|
![]() |
![]() |
||||||||
| ◆賃料 | 70,000 (消費税別) |
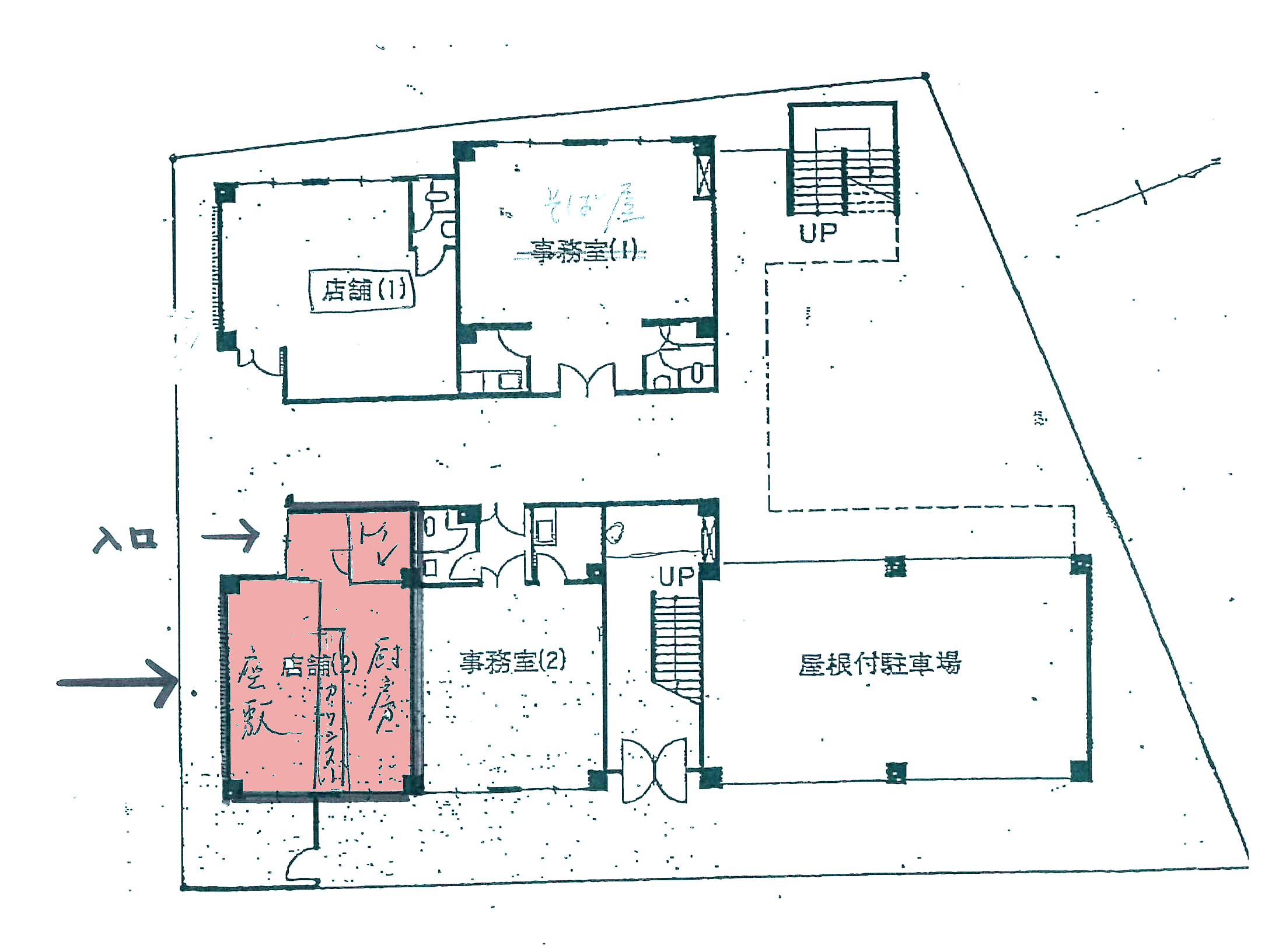
◆敷金 | 1ヵ月 | ◆専有面積 | 33.05u (10坪) |
◆所在階 | 1階 | ||
| ◆共益費 | ◆礼金 | 1ヵ月 | ◆間取り | カウンター、 個室あり |
|||||
| ◆管理費 | ◆保証金 | 無し | |||||||
| ◆その他 | ◆賃貸保証 | 月総額の 1ヶ月分 |
|||||||
| ◆駐車場 | 1台当たり 5,500 |
◆仲介料 | 70,000 消費税別 |
||||||
| 設備情報 | 交通情報 | ||
|---|---|---|---|
| ・電気 東北電力 | ・内装 テナント負担 | 山王けやき通りから歩2分 | |
| ・ガス 都市ガス | ・エアコン 残置撤去予定 | 秋田駅まで車9分 | |
| ・水道 公共 | バス停「高陽青柳町」徒歩5秒、県庁市役所前まで歩6分 | ||
| ・厨房機器の残置あり | ・構造 RC造陸屋根 4階建て | ||
| ・トイレ 専有(和式水洗) | 備考 | ||
| ・築年 S53年6月 | |||
| |
エクセルホーム株式会社 010-0914 秋田市保戸野千代田町15-20七宝第1ビルA号室 tel018-863-1500 fax018-864-1515 宅地建物取引業:秋田県知事[3]第2160号 |
||||