| H“cŒ§H“cŽsŽR‰¤‚P|‚P‚O|‚Q‚O | |
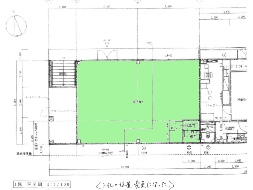
| yŽRºƒrƒ‹z@‚PŠK ¼‘¤ @‹Œ‘“¹ƒoƒX’Ê‚è @ˆùH“XÕ@¦ˆø‚«“n‚µŽžŠú‚ÍðŒ‚ ‚è |
@@ Ú׃y[ƒW‚Ö |
Žº“à@i‚Q‚O‚P‚W”N“–Žžj![]() |
Žº“à@i‚Q‚O‚P‚W”N“–Žžj![]() |
||||||||
Œ»Ý@Žc’u•¨‚ ‚è![]() |
Œ»Ý@Žc’u•¨‚ ‚è![]() |
||||||||
~–[@i2018”N“–Žžj![]() |
~–[@i2018”N“–Žžj![]() |
||||||||
ƒNƒŠƒbƒNI |
|||||||||
| y•â‘«î•ñz |
|||||||||
| @ |
@@ƒGƒNƒZƒ‹ƒz[ƒ€Š”Ž®‰ïŽÐ @ 010-0914@H“cŽs•ی˖ìç‘ã“c’¬15-20޵•ó‘æ‚Pƒrƒ‹A†Žº @@tel‚O‚P‚W-‚W‚U‚R-‚P‚T‚O‚O@@fax‚O‚P‚W-‚W‚U‚S-‚P‚T‚P‚T @@@@@‘î’nŒš•¨Žæˆø‹ÆFH“cŒ§’mŽ–m‚Rn‘æ‚Q‚P‚U‚O† |
||||